配套产品推荐
产品 · 简介
◎撬装系统
◆撬装功能描述
撬装,是设备框架和设备整体组合的一种形式,指已经将泵、阀、温度仪表、压力仪表和流量仪表等设备安装好了的一个整体式集合。在客户现场与其他设备或系统连接时,无需在中间安装阀门、仪表等设备,而只需对接油品管线、通讯电缆和电源电缆即可投入使用。
中国经济飞速发展,各种油品的需求量也将大大提高,在这一背景下,集机械、电子、自动控制和管理一体化的模块式橇装发油岛将非常适合未来油库的扩展,而且橇装式的设计轻便,便于随时在有必要时进行转移。
此外,橇装加油岛安装方便、性能稳定,发油精度高,操作简单,组网方便,数据传输快速便捷,支持多种通讯接口和协议,为整个网络系统构架提供了方便,为以后的上位机管理软件开发奠定了良好的基础。
灌装自动化系统作为油库自动化的一个组成部分,必须实现作业处理和信息处理两大机能相互融合。前者的目的是力求省力化和效率化;后者的目的是通过完成发油过程的采集活动,达到提高管理和信息集成。这两大机能作为一个有机的整体,利用必要的资源,开展物流服务,即提高作业效率又为油库管理提供可靠有效的信息。“实用、可靠、先进、经济、一体”是系统的设计目标。“实用”是指系统要面向用户的需要,结合油库实际;“可靠”是指系统运行稳定,易操作,易维护;“先进”是指系统必须达到当前的国际先进水平;“经济”是指系统在满足功能的前提下应尽可能的降低成本,性价比高;“一体”是指系统先从整体出发进行设计,要在硬件设计和软件设计上预留一定的发展空间。
我公司自行研制开发的撬装系统是具有国际先进水平的一体式发油装置。专门用于油库装车、码头装卸船及化工企业装车装桶等作业。具有液体的输送、液体的计量、自动控制及信息网络传输功能。该系统运至操作现场后只需对接油品管线、通讯电缆和电源电缆即可投入使用。
◆撬装系统特点
(1)发油岛上的主要设备都成橇于发油岛内,紧凑型的设计节约了空间;
(2)实现恒流发油,提高整体系统发油的精度;
(3)防静电溢流、接地、安全按钮系统及紧急停车系统综合于一体,保障安全;
(4)可与油库自动化系统完全对接,实现精确计量,提高油库效率;
(5)发油台的设计以及所选用的设备完全可以根据客户和油库现场要求而定;
(6)采用交钥匙的方式为客户提供全套的服务,可以带来相当大的经济效益:
(7)设计精确,避免不必要的浪费,降低买方成本。
(8)缩短工程周期,并且工程周期是可以掌握的。
(9)大量减少现场工作,包括焊接、调试等费用,节约了试车成本。
(10)维护方便,降低后期维护成本。
◆ 撬装系统设计
撬装系统分为三层:初层为现场一次仪表,包括泵、质量流量计、气动两断阀、静电溢油保护器和装车鹤管;第二层为现场批量控制器,其负责采集现场检测仪表(流量计、自控阀、静电溢油)信号,并相应的控制阀门开度和泵的启停,实现定量装车功能;第三层为数据传输,批量控制器通过RS-485或TCP/IP将装车数据传送给上位机系统,在上位机系统中显示装车数据,系统结构如下图:

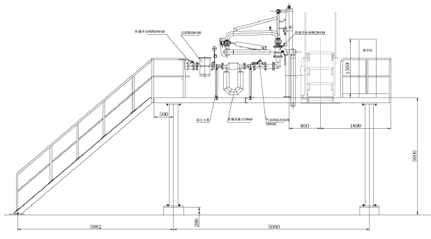
◆ 顶部装车撬
适用介质:油品、液化烃、化工品等
流量范围:25—150m³/h
设计温度:-20~150℃
设计压力:-0.06~5.0MPa
材质:碳钢、不锈钢、衬PTFE等
◆ 撬装图纸(示意图)

用户 · 评论
[免责声明]:部分文章信息来源于网络以及网友投稿,本网站只负责对文章进行整理、排版、编辑,是出于传递 更多信息之目的,并不意味着赞同其观点或证实其内容的真实性,如本站文章和转稿涉及版权等问题,请作者在及时联系本站,我们会尽快处理。
标题:上装橇
地址:http://www.htshzb.com/qzjlxt/74.html






